GRUMDESIGN Studio and living

  • Conversion- and interior-design by Troels Grum-Schwensen
  • Entrepreneur: Ken Larsen
  • Drawings and execution: 2009

 

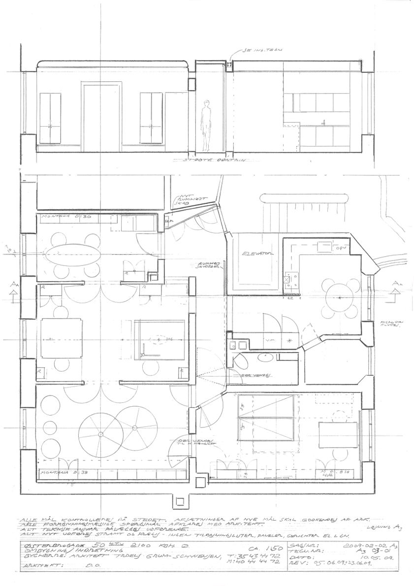
As I acquire this 136 square-meter apartment in 2009, a general restoration is obviously needed.

 

I choose to also make some, rather small, conversions, having a radical effect on appearance and function.

 

In one of the two longitudinal load-bearing walls, I expand the existing door-hole, leading to the kitchen, to the maximum possible. Opposite this expanded hole, I establish two narrow holes, allowing passage from kitchen to studio, where the most time is spent. - A short-cut for bringing the always needed coffee! At the same time those new wall-holes makes the whole apartment more transparent and improves the day-light and sun-light-passage in both sides of the relatively wide apartment.

 

The new holes appear to be simply cut out of the walls, making them a modern contrast to the old building with its stucco-details etc.

 

The interior-design and furnishing of the studio and living-area is deliberately kept extremely simple – and light in colors - in order to let the excellent view and day-light play the main-roles. The absence of curtains, potted plants and low-hanging pendular-lightings accentuate this theme. Artificial light comes from spots mounted in beams in the ceiling. The high positioning also helps to avoid mirror-effects in the windows, during night-time. The furniture is mainly in my own design, including special-made tables in meeting-room, studio and kitchen.